地址:上海市闵行区疏影路1280号
传真:021-54883445
邮箱:sales@sansitech.com
夜间或低能见度的情况下,机场目视照明系统可以为飞机提供起飞、降落和滑行提供目视引导(也被称作助航灯光)。目前,助航灯光主要包括进近灯光系统、精密进近坡度指示系统、跑道灯光系统、滑行道灯光系统及其它灯光系统。本文就进近灯光系统,为大家展开介绍。
1.进近灯光系统
(1)简易型:
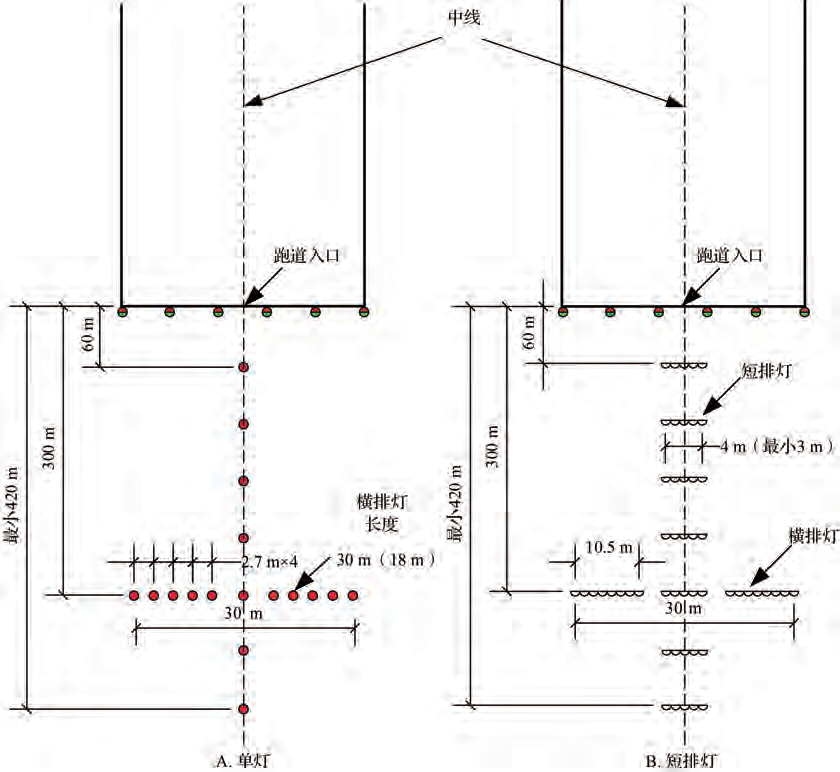
简易进近灯光系统由一行位于跑道中线延长线上,并尽可能延伸到距跑道入口不小于420m处的灯具,和一排在距跑道入口300m处一个长30m或18m的横排灯组成,可分为A型简易进近灯光系统和B型简易进近灯光系统。

简易进近灯光系统(中线灯间距为60m的情况)
A型中线灯为一个单灯,B型中线灯为长度不低于3米的短排灯。
A型简易进近灯光系统采用低光强发红色光的全向灯具,B型简易进近灯光系统的中线灯和横排灯是发可变白光的恒定发光灯。

三思-嵌入式进近侧边灯
(2)I型:
Ⅰ类精密进近灯光系统由以下部分组成:一排位于跑道中线延长线上,延伸至跑道入口900米处的中线灯,以及一排距跑道入口300米处的、长30米的横排灯。中线灯和横排灯均为可变白光的恒定发光灯,其中中线灯的纵向间距为30米,通常采用短排灯设计。

三思-机场进近灯光
(3)Ⅱ、Ⅲ类
Ⅱ类和Ⅲ类精密进近灯光系统由以下部分组成:一排灯具位于跑道中线延长线上,尽可能延伸至跑道入口900米处;两排侧边灯延伸至跑道入口270米处;以及两排横排灯,分别位于跑道入口150米和300米处。
侧边灯对称于跑道中线延长线,发出红光;横排灯发出可变白光,属于恒定发光灯。中线灯的纵向间距为30米,同样发出可变白光。如果跑道入口内移,道面灯具将采用嵌入式设计。
如今,LED节能光源以其适中的亮度和出色的穿透力,能够有效提升视觉舒适度,因此非常适合用于机场的目视照明灯具如对机场进近灯光系统感兴趣的,欢迎咨询上海三思。
*本文参考标准:MH 5001-2021 《民用机场飞行区技术标准》